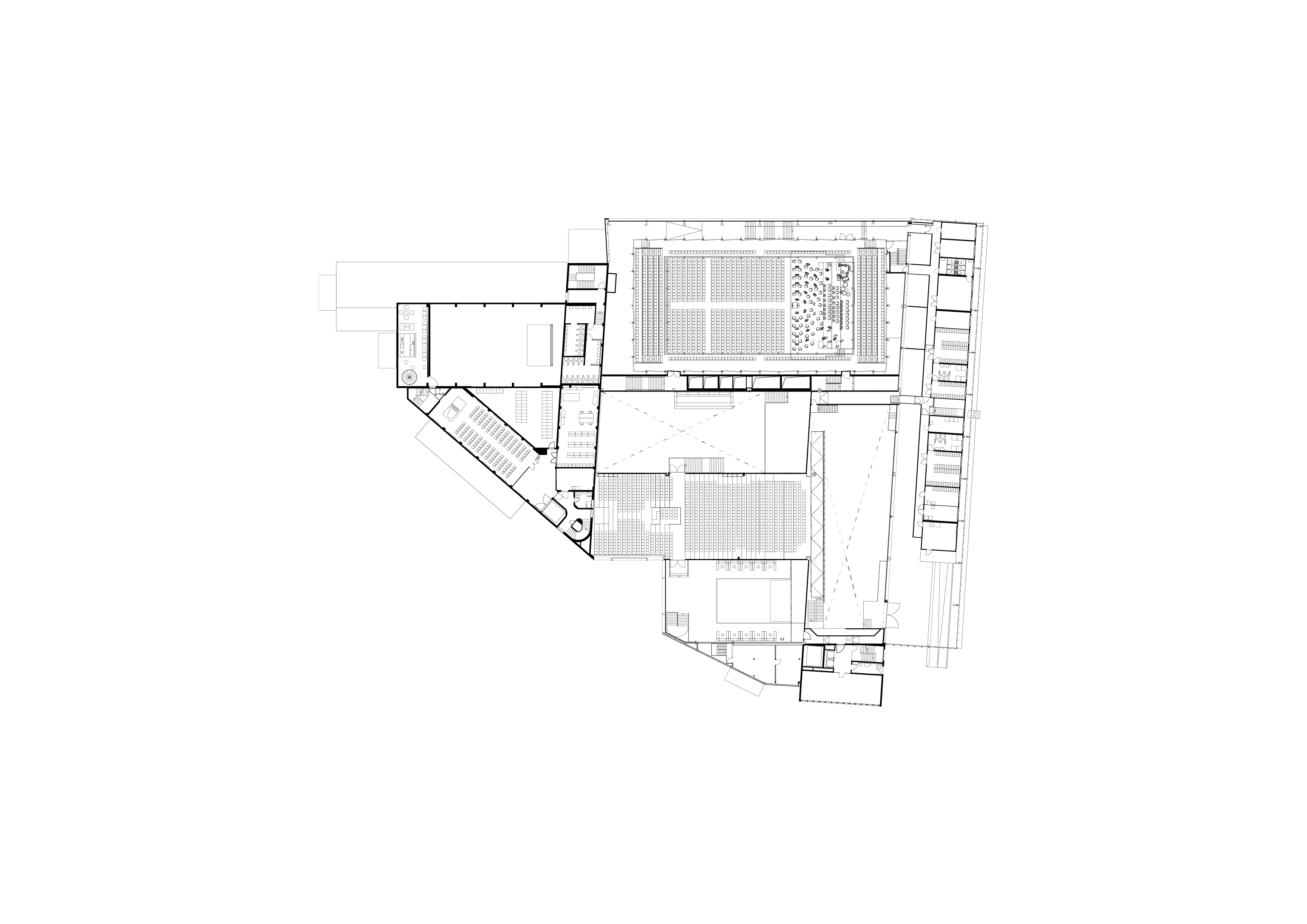
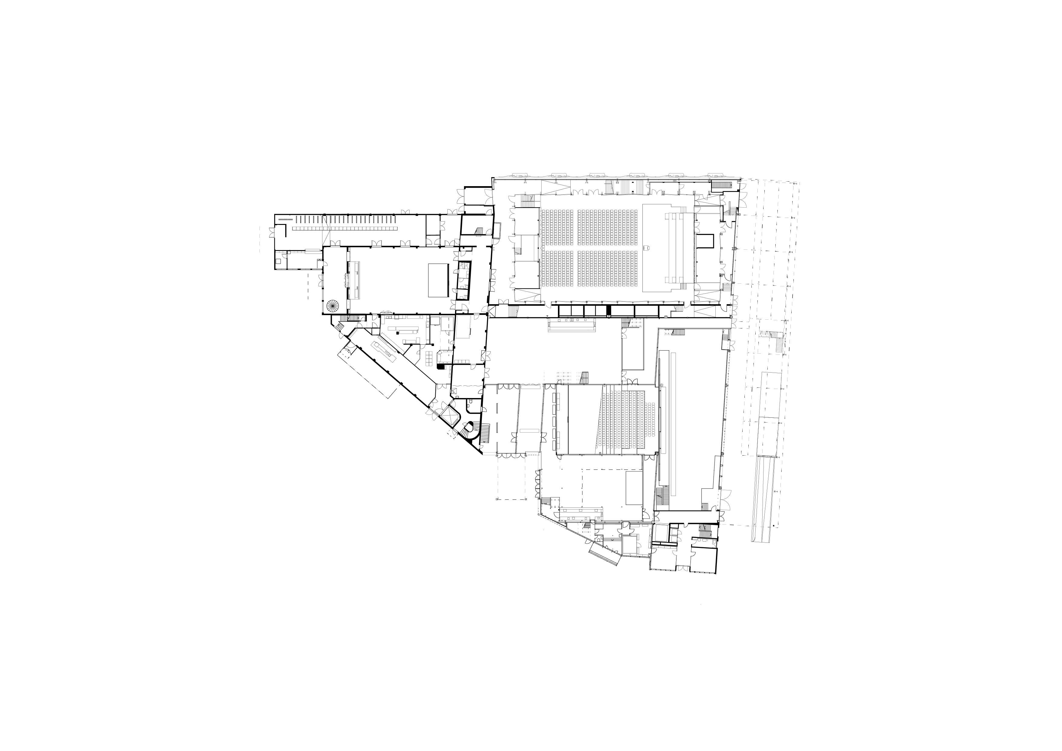
The Tonhalle Orchester Zurich was founded in 1868 and enjoys worldwide recognition. While its permanent home is being renovated, the provisional concert hall was designed to satisfy the orchestra’s and the public’s discerning artistic demands. The former Maag industrial hall, where the Maag brothers’ machine factory produced gearboxes, pumps, and cogs until the 1990s, was transformed into a concert hall with excellent sound quality within a very short period. In addition to the construction of cloakrooms, a foyer, and a concert hall, the Maag Building K, classified as a building worthy of special protection by the preservation authorities, was also equipped with recording rooms, administrative offices, break rooms, and a music library.
The concert hall constructed from simple and inexpensive spruce wood was inserted as a wooden box in a former production hall. In the intermediate area outside the wooden vessel and within the industrial building’s walls, visitors see the raw and honest character of the elementary wooden construction. The concert hall was built into the former industrial space as a decoupled modular wooden construction, a wooden “box within a box.” A new roof constructed from steel girders cast in concrete is equipped inside with acoustic concave ceiling reflectors between the girders.
With 1224 seats, 440 of which are in the short side tiers, the acoustic intimacy of the classical rectangular hall is universally praised by the orchestra and audience. The hall’s interior form adheres precisely to acoustic rules. The slightly tilted wall panels and convex curved ceiling panels break the hall’s right angles and disperse sound optimally; the hall becomes a single resonating body.
The Maag Halls’ provisional measures began in 2015 with a complete acoustic and energetic renovation. Due to the principal theatre’s delayed renovation, the popular temporary Tonhalle will now be used until 2021. Moving the Tonhalle Orchester to Zurich West has benefited both the building and the surrounding neighborhood.
moreless
Das 1868 gegründete Orchester der Zürcher Tonhalle geniesst weltweit Anerkennung. Während der Umbauarbeiten der Stammspielstätte sollte auch der provisorische Konzertsaal höchsten künstlerischen Ansprüchen des Ensembles und des Publikums gerecht werden. Die ehemalige Maag-Industriehalle, in der bis in die 1990er Jahre Getriebe, Pumpen und Zahnräder der Gebrüder Maag Maschinenfabrik gefertigt wurden, musste in der Folge innert kürzester Zeit zu einem temporären Konzerthaus mit exzellentem Klangniveau umgebaut werden. Neben dem Einbau von Garderoben, Foyer und Konzertsaal wurden im Maag-Gebäude K, das von der Denkmalpflege als besonders schützenswert eingestuft ist, für das Orchester Einspielzimmer, Büros für die Administration, Pausenräume und eine Notenbibliothek untergebracht.
Der aus schlichtem und kostengünstigem Fichtenholz erbaute Konzertsaal ist als hölzerne Box in eine ehemalige Produktionshalle eingebaut. Im Umraum der Industriehalle, an der Aussenseite des hölzernen Gefässes, erfassen die Besuchenden die rohe und ehrliche Konstruktionsweise des Holzelementbaus. Der Einbau des Konzertsaals in die ehemalige Industriehalle erfolgte als entkoppelter Holzelementbau und bildet eine hölzerne «Box in der Box». Die neue Dachkonstruktion mit überbetonierten Stahlrippenträgern ist zwischen den Trägern mit akustisch wirksamen konkaven Deckenreflektoren ausgestattet.
Die akustische Intimität im klassischen Rechtecksaal mit 1224 Sitzplätzen, davon 440 Sitzplätzen in den Rängen an den Kurzseiten, wird vom Orchester und auch vom Publikum allseitig gelobt. Die innere Form des Saales folgt präzis den Regeln der Raumakustik. Durch die leicht schräg gestellten Wandpaneele und die raumseitig konvex gewölbten Deckenverkleidungen werden die rechten Winkel im Saal gebrochen und der Schall wird so optimal ausgebreitet: Der Saal wird zu einem einzigen Klangkörper.
Die ersten baulichen Vorkehrungen erfolgten bereits 2015 im Zuge der akustischen und energetischen Gesamtsanierung der Maag-Hallen. Aufgrund der verzögerten Renovationsarbeiten im Stammspielhaus soll das beliebte Tonhalle-Provisorium nun bis 2021 genutzt werden. Von dem Standort des Tonhalle-Orchesters in Zürich-West profitiert das Haus selbst genauso wie das ganze umliegende Quartier.
moreless
facts
commission: Direct
program: Conversion, Culture
size: 5500 m²
team: Annette Spillmann, Harald Echsle, Isabel Ausserer, Peter Weeber, Katrin Zumbrunnen
consultants: Exent AG; Henauer Gugler AG; Pirmin Jung AG; Müller BBM
awards: Award of Marketing and Architectur, category winner, temporary structures; Best Architects, 2019; Prix Lignum, 2018; German Design Award, 2019