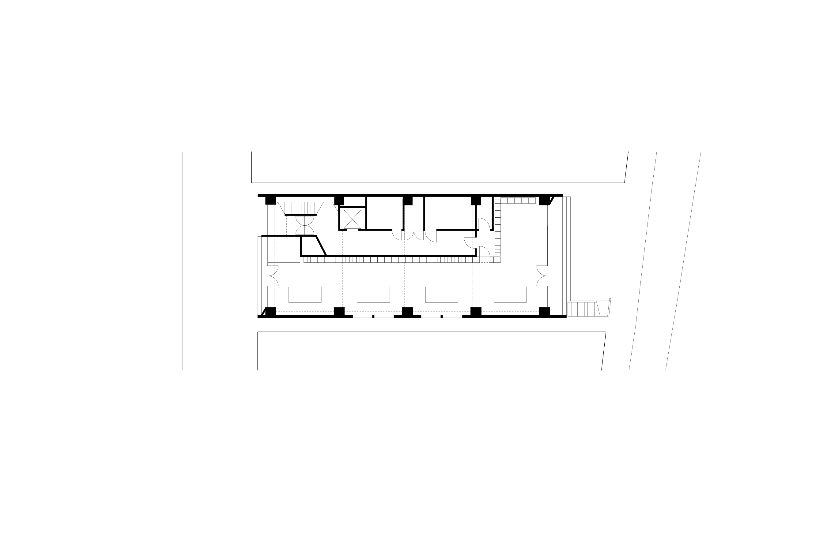
Set in Shibuya, a busy shopping and fashion district, the Freitag Store Tokyo capitalizes on a unique opportunity to connect two streets and provide shopfronts on both sides.
A shipping container is positioned as a landmark at one entrance, referring to the Freitag products' journey from their home in Switzerland to the retail premises in Japan and referencing the brand's philosophy and its flagship Zürich store. The layout draws inspiration from the idea of a 'Freitag Street.' Inside the store, strategically placed Tokyo streetlights mark the street and guide visitors throughout the shop. The store features five sale points, each offering varied services and products, from a repair center and bicycle rental to an exclusive space for the Freitag reference series.
Using raw materials and specific objects produces a unique shopping experience, Spillmann Echle's hallmark for Freitag retail spaces.
moreless
Der Freitag Store Tokyo befindet sich in Shibuya, einem der belebtesten Einkaufs- und Modeviertel der Stadt. Der Standort selbst bot die seltene Gelegenheit, zwei Straßen miteinander zu verbinden und auf beiden Seiten Schaufenster anzulegen. Als Wahrzeichen wurde ein Container vor einem der Eingänge aufgestellt. Er verweist auf den Warenfluss von der Schweiz zu den Verkaufsräumen in Japan. Er ist auch eine Referenz an die Markenphilosophie und den Flagshipstore in Zürich.
Die Idee für das Ladenlayout war, eine 'Freitag Strasse' zu schaffen. Im Inneren des Ladens wurden Strassenlaternen aus Tokio verwendet, um die Straße zu markieren und die Besucher durch den Laden zu führen. Es gibt fünf Verkaufsstellen, die jeweils unterschiedliche Dienstleistungen und Produkte anbieten. Dazu gehören ein Reparaturcenter, ein Fahrradverleih und ein Shop für die einzigartige Freitag-Referenzserie. Rohe Materialien und spezifische Objekte vermitteln die Idee der Marke und schaffen ein einzigartiges Einkaufserlebnis.
moreless
facts
commission: Direct
program: Interiors, Retail
size: 130 m²
team: Annette Spillmann, Harald Echsle, Katrin Murbach, Simon Zehnder
consultants: Ortreport; torafu architects