The historic ABB halls in Oerlikon prevail as significant architectural testaments to Zurich's industrial past. Their cultural relevance is further accentuated due to their proximity to the commercial and residential areas of Neu-Oerlikon. Following a revision of updated building regulations, these halls are now permanently preserved and, for the most part, designated as protected structures.
The renovation, reinforcement, and technical improvement of these halls are being meticulously carried out in anticipation of the spaces used for public events and large-scale gatherings. The renovation adhered to the objective of retaining the building's industrial charm; in collaboration with conservation authorities, the internal modifications conform to a "continuous building" and an adaptive reuse approach. The elaborate and almost surgical precision used for the concrete work enables it to naturally blend with the building's industrial character.
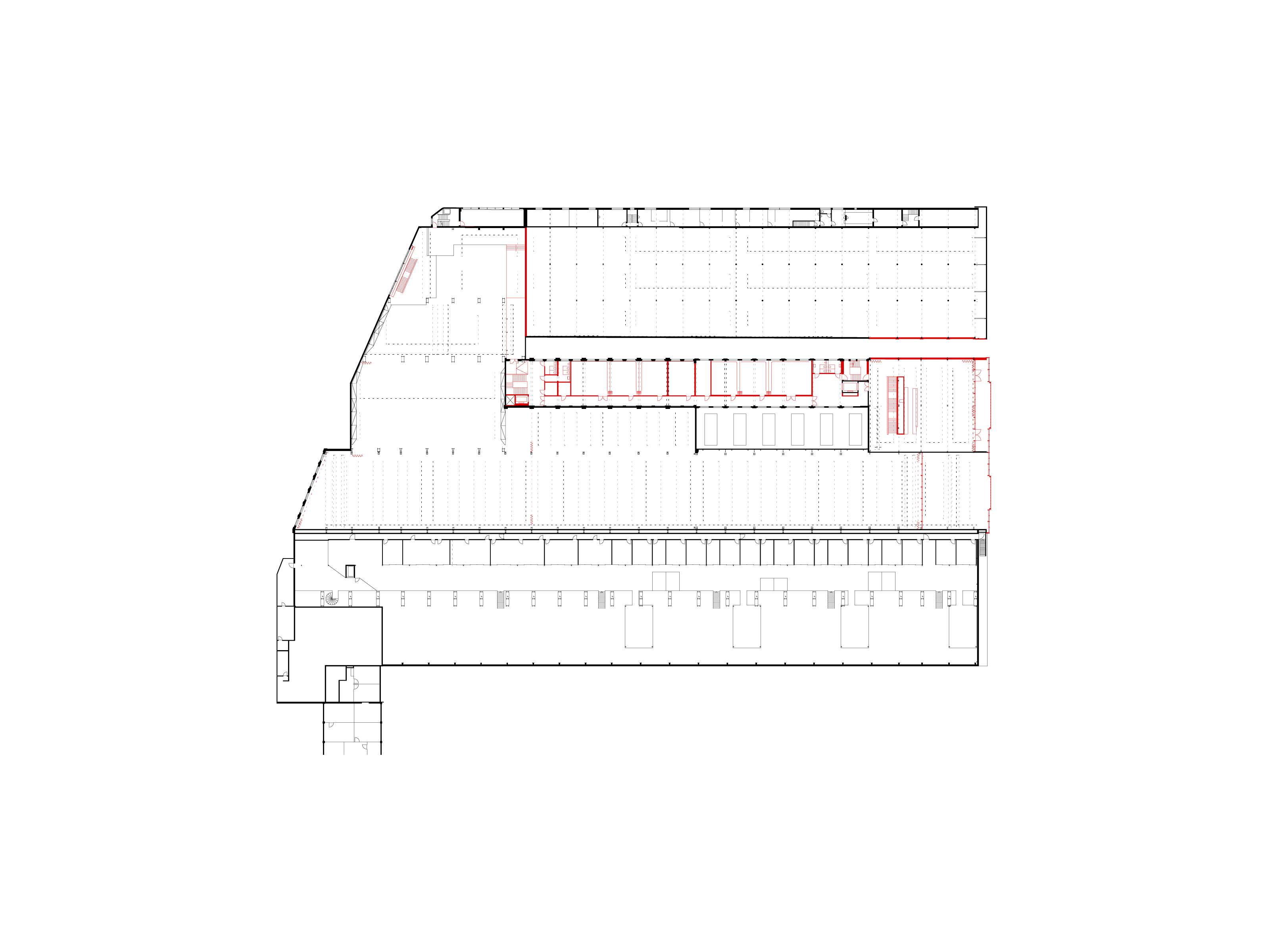
By designating the nearby MFO Park as the focal point of the neighborhood, the halls need to be condensed and fitted with a temporary façade. A new glass exterior visualizes this “urban cut” and positions the halls as modern structures in relation to the MFO Park. At the same time, it imparts them with a transparency that invites and integrates with the surrounding community. Two prominent lift gates on the façade further characterize the halls as welcoming public spaces.
The interiors are distinguished by a slender metal structure. Reaching a height of 24 meters at its highest section, the expansive volumes lend an almost sacral quality to this space. By removing skylights, a new exterior space is carved out within the building, forming a new enclosed courtyard framed by large gates that integrate with the hall’s circulation network. Vast exhibition areas need upgraded climate control, utilities, and fire safety systems and are supplemented with two dining areas, a bar, a workshop, and conference rooms.
moreless
Die historischen ABB-Hallen in Zürich-Oerlikon sind als architektonische Zeugen der industriellen Vergangenheit der Stadt Zürich von grosser Bedeutung. Durch ihre Nachbarschaft mit den Geschäfts- und Wohnquartieren Neu-Oerlikons gewinnen sie zusätzlich an Relevanz. Im Zuge der Revision der Sonderbauordnung bleiben die Hallen nun endgültig erhalten und werden grösstenteils unter Schutz gestellt.
Auf dieser Grundlage erfolgt – mit grosser Rücksicht auf die Bausubstanz – eine behutsame Sanierung der Hallen, die für öffentliche Veranstaltungen und Grossanlässe genutzt werden können. Der industrielle Charme des Gebäudes bleibt erhalten. Die inneren Eingriffe basieren in Absprache mit der Denkmalpflege auf dem Grundkonzept des Weiterbauens. Die aufwendigen, schon fast chirurgischen Betonarbeiten fügen sich selbstverständlich in die Industriearchitektur ein.
Für die Schaffung des angrenzenden MFO-Parks als Quartiermittelpunkt wurden die Hallen verkürzt und mit einer temporären Fassade versehen. Dieser städtebauliche Schnitt in der Industriearchitektur bleibt durch eine neue gläserne Haut ablesbar. Diese transformiert die Hallen zum MFO-Park gleichzeitig in einen zeitgenössischen Stadtbaustein mit einem transparenten Erscheinungsbild, der sich zum Quartier öffnet. Die beiden die Fassade prägenden Hubtore verstärken diesen neuen, einladenden und öffentlichen Charakter zusätzlich.
Das Innere der Hallen ist geprägt von einer grazilen Metallstruktur, die im höchsten Teil der Hallen 24 Meter in die Höhe ragt und diesen Teil förmlich in einen sakralen Raum zu überführen scheint. Im Inneren der Hallen entsteht ein neuer Innenhof, der durch das Entfernen der Oberlichter zu einem Aussenraum transformiert wird und durch grosse Tore in das Erschliessungsgeflecht der Gesamthallen eingebunden ist. Die riesigen Ausstellungsflächen wurden klimatisch, haustechnisch und brandschutztechnisch ertüchtigt und um zwei Restaurantbereiche, eine Bar und Workshopräume ergänzt.
moreless
facts
commission: Direct
program: Conversion, Culture
size: 6850 m²
team: Annette Spillmann, Harald Echsle, Christoph Heitzmann, Janek Geiser, Annina Fischer, Severine Frehner, Bartosz Lamperski, Piotr Margiel, Alexandra Meuche, Lisette Oberleitner, Saskja Odermatt, Paolo Pedrazzoli, Dagmar von Strantz, Peter Weeber
consultants: Spiegel + Partner AG; Walt Galmarini AG